Prime Truck Parking Opportunity
Description
Prime Truck Parking Opportunity in Hialeah Gardens, FL:
Owner/user opportunity for truck, tractor-trailer parking facility in the heart of Hialeah Gardens. This prime property, strategically positioned, offers exceptional accessibility and high demand, making it an ideal for investors seeking to capitalize on the increasing demand for secure and strategically located truck parking.
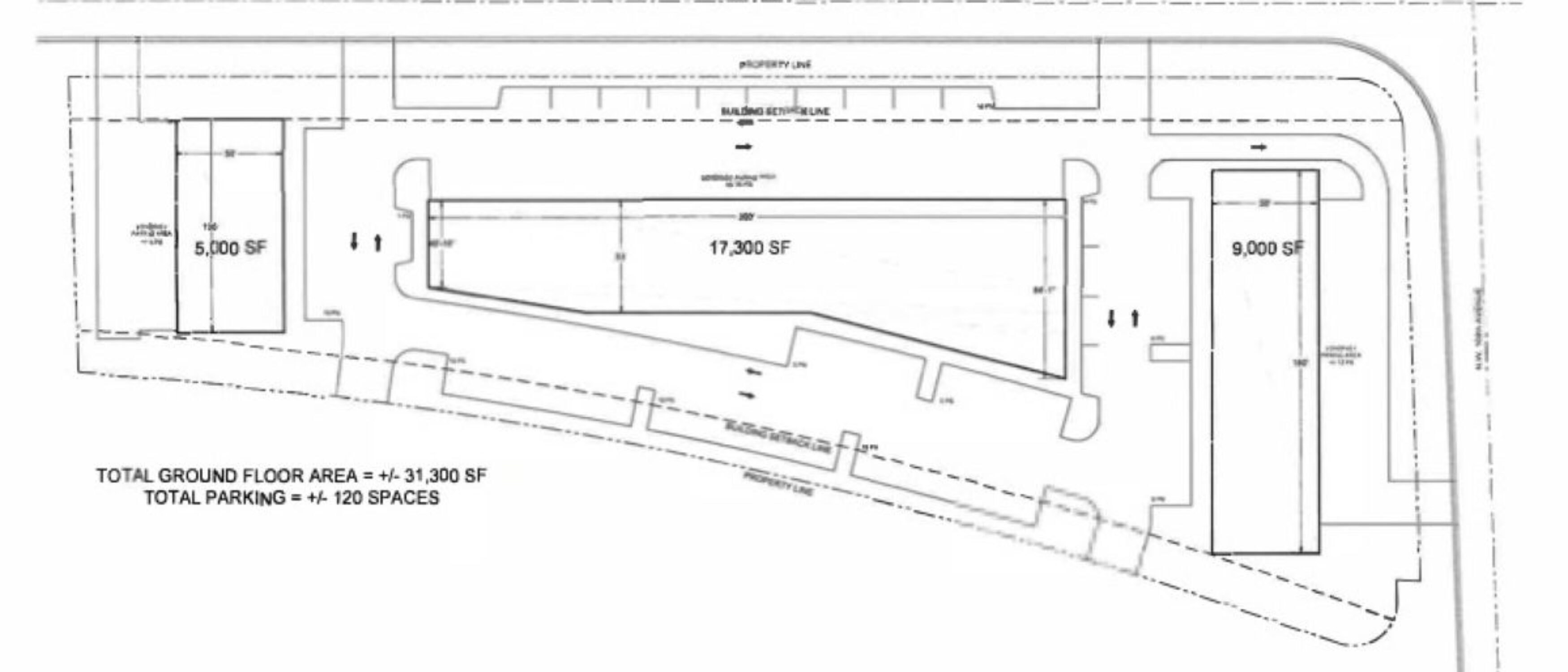
Spanning 119,648 square feet, this expansive lot provides ample space for a high-capacity truck parking operation in one of South Florida’s most sought-after logistics hubs. With the ever-growing demand for secure and well-located truck parking, this property offers a rare chance to establish a profitable, long-term investment in a booming industry.
Unmatched Accessibility & Prime Location:
One of the most significant advantages of this property is its direct access to major highways and thoroughfares, making transportation and logistics seamless. With proximity to the Florida Turnpike, Okeechobee Road, and I-75, businesses that establish themselves on this property will benefit from exceptional connectivity to key commercial districts throughout South Florida. The accessibility to these major roadways enhances efficiency, reduces transportation costs, and significantly increases the appeal of this truck parking opportunity.
The Strength of Hialeah Gardens:
Hialeah Gardens, FL, is a thriving commercial and industrial hub, known for its business-friendly environment and rapid economic growth. The area continues to attract new development opportunities, with an increasing number of commercial and industrial projects shaping it into a prime destination for businesses. Its strategic location near Miami, major airports, and distribution centers makes it an ideal choice for logistics companies, manufacturers, and businesses seeking truck parking.
This is your chance to bring sought after truck parking opportunity to life in one of South Florida’s most dynamic commercial corridors. Whether you’re looking to park your own fleet or hold for long-term leasing income, this property offers the perfect combination of location, accessibility, and investment potential.
Act now to secure this rare opportunity and turn your vision into reality in Hialeah Gardens!
Investment Highlights:
- Prime Location: in Hialeah Gardens, a high-demand logistics hub.
- Expansive Lot: 119,648 sq. ft., ideal for a high-capacity truck parking facility.
- Exceptional Accessibility: Direct access to major highways, including Florida Turnpike, Okeechobee Road, and I-75.
- Investment Potential: Growing demand for secure truck parking presents a profitable opportunity.
- Thriving Business Hub: Hialeah Gardens is a rapidly developing commercial and industrial area near Miami, airports, and distribution centers.
- Versatile Use: Ideal for fleet owners or investors seeking long-term leasing income.
Address
-
Country United States
-
Province/State Florida
-
City/Town Hialeah Gardens
Overview
- Property ID 13493
- Price $7,500,000
- Property Type Business, Development opportunities
- Property status For sale
- Size 119,648 SqFt
- Land area 119,648 SqFt
- Subtype Commercial, Industrial, Warehouse
- Investment Type Owner/User
- Investment Sub Type Truck Parking Lease
- Tenancy Vacant
- Square Footage 119,648
- Net Rentable (sq ft) 119,648
- Zoning 7100 INDUSTRIAL-LIGHT MFG; 4081 VACANT LAND - INDUSTRIAL
- Lot Size (acres) 2.74
- Price/Sq Ft (Land Value) $62.68/SF
