Hobe Sound Shovel-Ready Retail Site
Description
This Hobe Sound retail development offers a rare, fully permitted commercial opportunity in Hobe Sound, Florida. The site sits within a high-demand coastal growth corridor. As a result, it benefits from strong local and regional demand. Additionally, the project allows investors and users to move forward quickly. The approved plans support a flexible retail or service-oriented layout. Therefore, this opportunity provides speed, certainty, and long-term upside.
Zero Entitlement Risk | Ready to Build
This project removes the uncertainty often tied to coastal development. Over several years, ownership secured every required approval. Consequently, a buyer can proceed directly to construction. Unlike typical projects, no zoning or land-use changes are required. Furthermore, there are no outstanding design or utility issues.
Key Advantages:
- Impact-resistant storefront systems
- Fire-rated construction
- Screened mechanical equipment
- ADA-compliant access and parking
- Flexible layout for single or multi-tenant use
Strategic Location | Coastal Corridor Visibility
The property sits along a primary coastal corridor with strong visibility. Additionally, it benefits from consistent traffic volumes exceeding 20,000 vehicles per day. This route connects major coastal destinations and surrounding communities. Therefore, businesses gain strong exposure and easy access. The location also serves affluent residential neighborhoods in and around Hobe Sound.
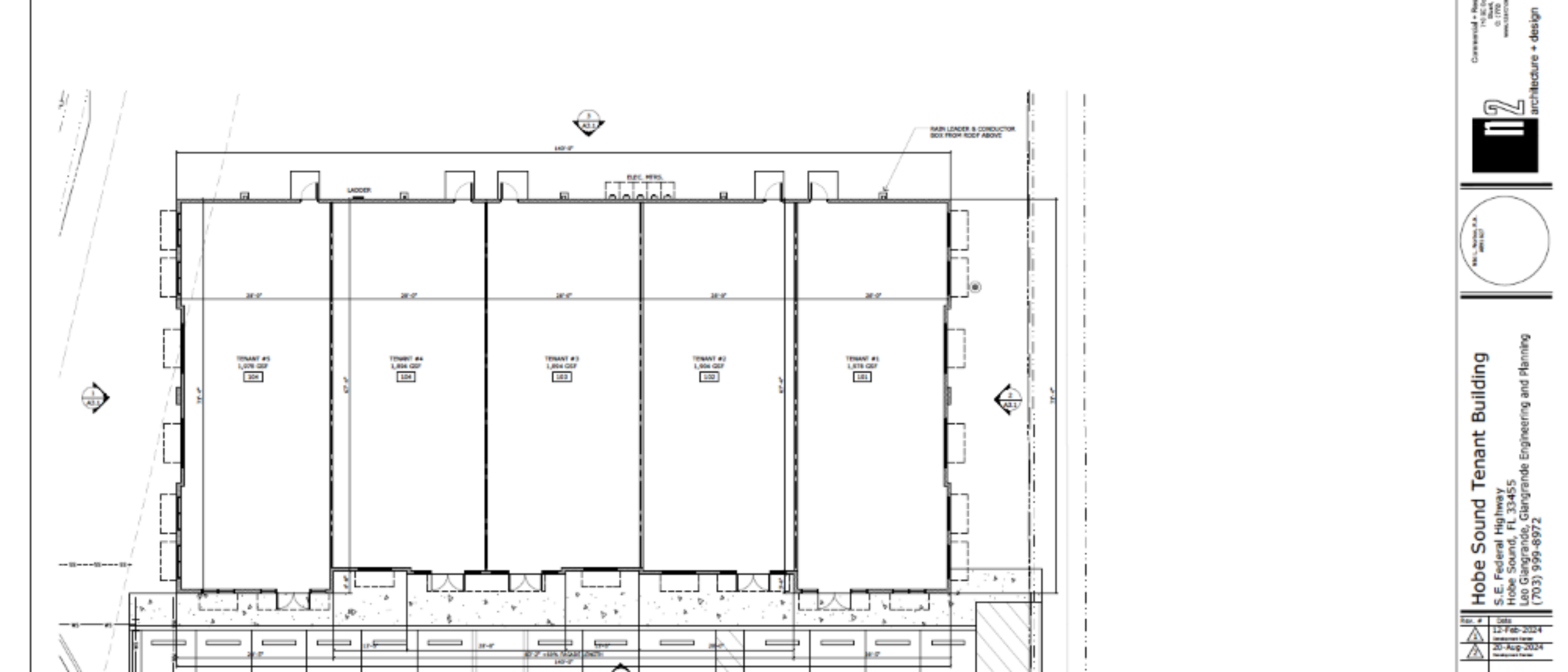
Approved Building Design | Modern Retail / Flex
The approved plans allow for a contemporary retail and flex configuration. Multiple tenant bays and private mezzanine areas enhance flexibility. Moreover, the design complies fully with local architectural standards. Durable materials and modern features support long-term performance. As a result, the building appeals to both tenants and owner-users.
Design features include impact-resistant storefronts, fire-rated construction, screened mechanical systems, ADA-compliant access, and a flexible configuration suitable for both multi-tenant and single-user occupancy.
Ideal for Retail, Flex, or Service Uses
This development suits many commercial uses. Examples include service retail, professional offices, medical users, showrooms, and trade businesses. Limited new supply strengthens long-term demand. Meanwhile, population growth and household incomes continue to rise. Therefore, this project aligns well with market fundamentals in Hobe Sound.
Offering Terms
- All approved plans and permits convey with the sale
- Construction documents included
- Immediate coordination with county staff available
- Flexible terms and seller financing considered
Address
-
Address Hobe Sound, FL
-
Country United States
-
Province/State Florida
-
City/Town Hobe Sound
Overview
- Property ID 14700
- Price $1,450,000.00
- Property Type Development opportunities, Retail
- Property status Sale
- Size 12,772 SqFt
- Development Type Retail
- Lot Area 0.93 acres
- Zoning COR-1
- Permits Yes
- Buildable Area 12,772 sqft
- Seller Financing Yes
- Opportunity Zone No
